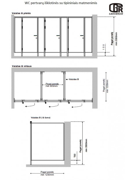
WC pertvaros LTP-18
Klausti apie prekęPrekės kodas: LTP-18
Anoduoto aliuminio profiliai;
18mm storio LMDP plokštė;
Užsirakinama mechaninio skląsčio pagalba;
Aliuminio rankenėlės.
Prekės aprašymas
Tai ekonominės klasės tualetų pertvaros, dažniausiai montuojamos mokyklose, vaikų darželiuose, gamybinėse patalpose ir kt. Šių pertvarų konstrukcijoje nėra greitai lūžtančių detalių.
Užsisakykite dabar











